Casa indipendente in vendita

Borgo D'Ale, Via Carlo Emanuele Dotta
€ 100.000
5 locali 5 locali
195 Mq 195 Mq
2 bagni 2 bagni

Casa indipendente in vendita

Borgo D'Ale, Via Carlo Emanuele Dotta

Descrizione annuncio

IMMOBILE IN TRATTATIVA – annuncio pubblicato a scopo promozionale

Villetta su piano rialzato con box doppio in vendita a Borgo d'Ale (VC)

In una tranquilla zona residenziale, prossima al centro, proponiamo in vendita una soluzione indipendente con pertinenze e cortile privato. L'immobile è situato al fondo di un vicolo riservato e percorso dai soli residenti, godendo così di ottima privacy e silenzio, pur trovandosi a breve distanza dai principali servizi del paese. L'abitazione si sviluppa sul piano rialzato, con un primo piano attualmente in stato grezzo.

Caratteristiche principali

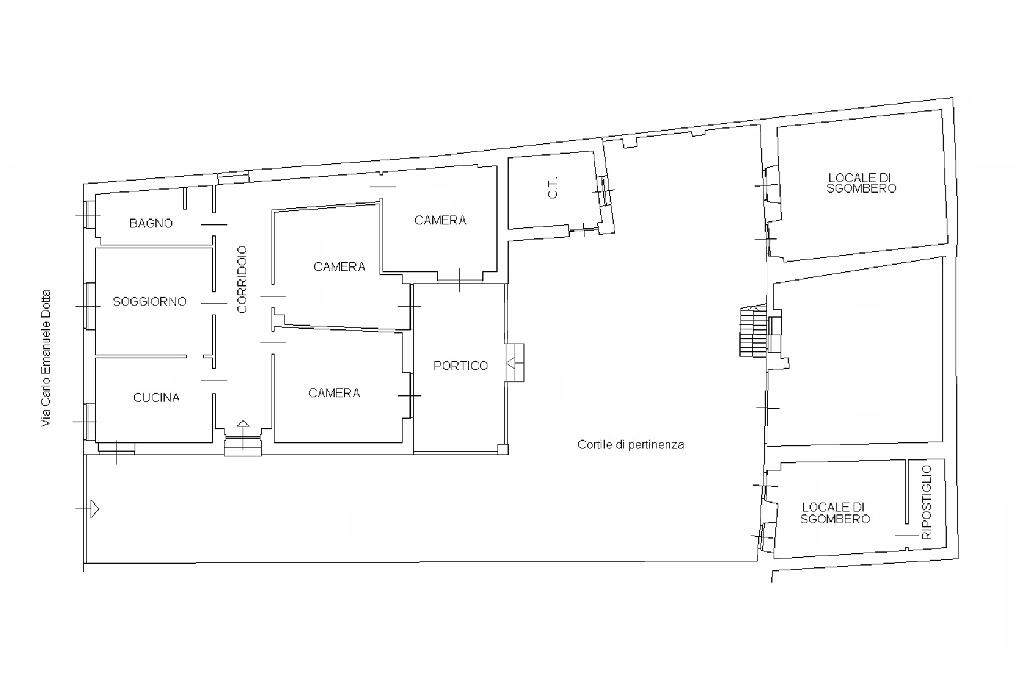
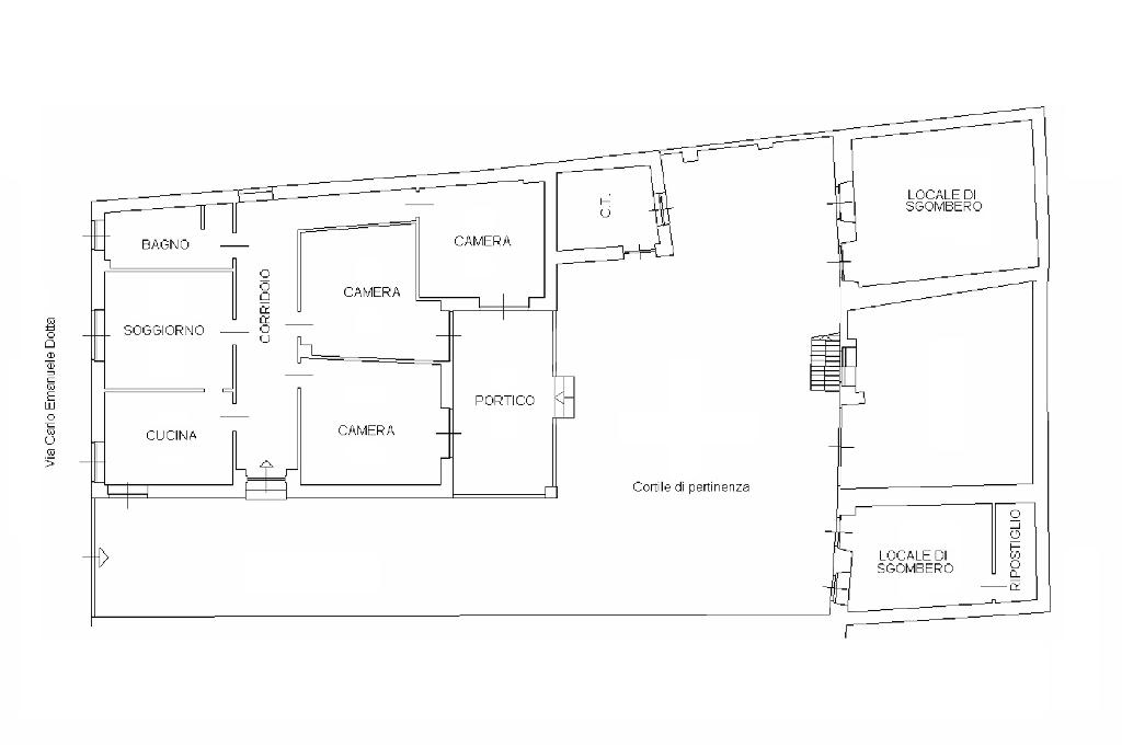
- Cucina: abitabile, comunicante con la sala da pranzo;

- Sala da pranzo: usufruibile come soggiorno e comunicante con la cucina;

- Camera da letto 1: con porta finestra e accesso al terrazzo;

- Camera da letto 2: con porta finestra e accesso al terrazzo;

- Camera da letto 3: con porta finestra e accesso al terrazzo;

- Bagno: completo di doccia e vasca.

Pertinenze e Locali Accessori

- Seconda cucina esterna: con vano ripostiglio;

- Lavanderia esterna: pratico locale caldaia con allacci per la lavatrice e bagno di servizio;

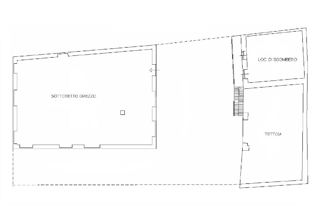
- Depositi: un locale al piano terra e uno al primo piano, entrambi allo stato grezzo;

- Ex Fienile: circa 30 mq grezzi situati sopra il box;

- Box Doppio: circa 30 mq con volte;

- Sottotetto abitazione: di circa105 mq grezzi, con potenziale recupero per ampliamento;

- Terrazzo: posizionato al piano rialzato;

- Cortile: privato di circa 130 mq, pavimentato con autobloccanti.

Dotazioni e Impianti

- Riscaldamento: a metano con radiatori e caldaia a condensazione nuova (2022);

- Impianti: elettrico, idraulico e di riscaldamento rifatti nel 2000;

- Infissi: in alluminio doppio vetro sul lato strada, vetro singolo sui restanti.

Punti di Forza

- Contesto tranquillo e riservato, a soli 200 metri dal centro;

- Abitazione sviluppata su un unico piano;

- Possibilità di personalizzazione o ampliamento (sottotetto grezzo).

Verifica catastale ed urbanistica in corso. La descrizione, i dettagli e le foto sono pertanto puramente descrittivi.

Contattaci per maggiori informazioni o per fissare una visita e seguici sui social per non perdere aggiornamenti e novità in anteprima.

Il team di Dreamers SRL è a tua disposizione.

Mostra tutto

Nelle vicinanze

Trasporto pubblico Trasporto pubblico
Borgo D'Ale (Municipio Piazza-Via Roma)
Borgo D'Ale (Municipio Piazza-Via Roma)
180 m
Borgo D'Ale (Municipio Piazza-Via Roma-Municipio)
Borgo D'Ale (Municipio Piazza-Via Roma-Municipio)
180 m
Ricariche auto elettriche Ricariche auto elettriche
Borgo d'Ale Matteotti | BeCharge
480 m
Farmacia Farmacia
Farmacia Ferretti
410 m
Farmacia Dott. Miglietta
2,4 Km
Negozi Negozi
C'era una volta di Sacco Dario
2,3 Km
Ristoranti Ristoranti
Bar Ristorante Pizzeria La Muraglia Cinese
2,4 Km
Mostra tutto

Caratteristiche

Rif.:
61124203
Piano:
Rialzato di 2
Totale piani:
2
Box:
1
Terrazzi:
1
Camere da letto:
3
Mostra tutto
Prezzo Prezzo
€ 100.000
Rata mutuo Rata mutuo
€ 474 / mese
Spese annue Spese annue
€ 0
Proponi il tuo prezzoProponi il tuo prezzo

Classe Energetica

G
G
G
G
G
G
G
G
G
EP globale non rinnovabile:
257.17 kW h/m² anno
EP globale rinnovabile:
0.91 kW h/m² anno
EP invernale del fabbricato:
EP estiva del fabbricato:
Anno di costruzione:
1977
Riscaldamento:
Autonomo
Tipo impianto:
A radiatori
Tipo alimentazione:
Metano

Ti interessa visionare l'immobile?

Fissa un appuntamento  Fissa un appuntamento

Richiedi informazioni

Clicca su Leggi per aprire l'informativa
* Questi campi sono obbligatori

Calcola il tuo mutuo

Semplice e senza impegno
Anticipo

( % )
Mutuo

( % )

pochi semplici passi

inserisci i tuoi dati
Questionario completato
Grazie per aver richiesto un appuntamento senza impegno con un nostro Consulente del Credito e Assicurativo.

Hai inserito correttamente tutti i dati necessari e a breve riceverai una e-mail con un link da convalidare per inviare i tuoi dati.
Affiliato
Dreamers Srl
Via Salussolia, 10 13043 Cigliano (VC)

Il nostro staff


  • Serena Magistrello
    Coordinatrice

  • Matteo Piras
    Responsabile

  • Mattia Pietrosino
    Affiliato
Via Salussolia, 10 13043 Cigliano (VC)
Zona: Cigliano-Livorno Ferraris-Moncrivello
Mostra su mappa
Affiliato
Dreamers Srl
Via Salussolia, 10 13043 Cigliano (VC)

2026 Tecnocasa Franchising S.p.A. - P. IVA 08365160152 - Via Monte Bianco 60/A 20089 Rozzano (MI). Ogni agenzia ha un proprio titolare ed è autonoma. Privacy policy | Policy utilizzo | Cookie policy