Quadrilocale in vendita

Cigliano, Corso Re Umberto
€ 65.000
4 locali 4 locali
101 Mq 101 Mq
2 bagni 2 bagni

Quadrilocale in vendita

Cigliano, Corso Re Umberto

Descrizione annuncio

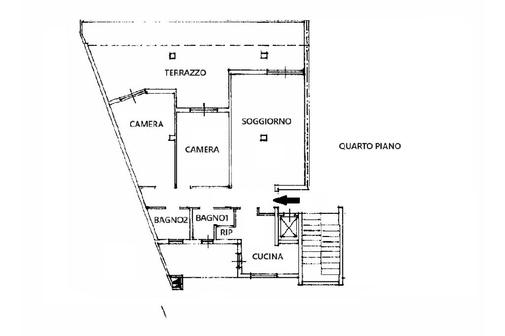
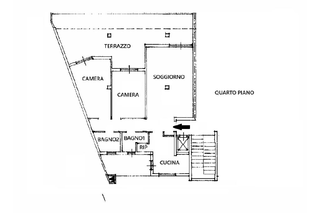
Quadrilocale al penultimo piano con grande terrazzo in vendita in centro a Cigliano (VC)

In posizione centrale a Cigliano (VC), proponiamo in vendita un appartamento quadrilocale al quarto e penultimo piano di un condominio dotato di ascensore. L’immobile gode di un ampio terrazzo privato di 50 metri quadrati .ca con affaccio panoramico sul corso principale, ideale per chi cerca spazi esterni vivibili nel cuore del paese.

Attualmente l’alloggio è locato fino al 31/12/2025.

Caratteristiche principali

- Soggiorno: con sfogo sul terrazzo;

- Camera da letto: con sfogo sul terrazzo;

- Camera: con sfogo sul terrazzo;

- Bagno 1: con sfogo sul balcone e doccia;

- Bagno 2: finestrato e con vasca;

- Ripostiglio: con attacco lavatrice;

- Terrazzo privato: circa 50 metri quadrati, aperto e panoramico.

Pertinenze

- Box auto: 15 metri quadrati .ca;

- Ascensore condominiale.

Riscaldamento e dotazioni

- Riscaldamento semiautonomo a metano con radiatori (spese condominiali € 2.400/anno comprensive di riscaldamento);

- Caldaia condominiale nuova (2023);

- Finestre in alluminio con vetro singolo;

- Pavimentazioni in parquet nel soggiorno, nelle camere e lungo il corridoio.

Punti di forza

- Ampio terrazzo vivibile con vista sul corso principale di Cigliano;

- Penultimo piano con ascensore, ambienti luminosi e ben distribuiti;

- Posizione centrale e servita, a pochi passi da negozi e servizi.

Contattaci subito per fissare una visita o per avere maggiori informazioni su questo appartamento!

Mostra tutto

Nelle vicinanze

Trasporto pubblico Trasporto pubblico
Cigliano (Corso Umberto I 35)
Cigliano (Corso Umberto I 35)
100 m
Cigliano (Corso Umberto I Piazzetta Ariotti)
Cigliano (Corso Umberto I Piazzetta Ariotti)
110 m
Ricariche auto elettriche Ricariche auto elettriche
EnelX Fast Moncrivello Brikò
1,1 Km
Farmacia Farmacia
Farmacia
140 m
Supermercati Supermercati
Superstore Mercatò
310 m
Briko
1,2 Km
Ristoranti Ristoranti
Trattoria del Moro
50 m
Ristorant Il Peso dal 1897
50 m
Agriturismo Il Cigno
580 m
Mostra tutto

Caratteristiche

Rif.:
61114809
Piano:
4 di 6 con ascensore (Piano alto)
Box:
1
Balconi:
1
Terrazzi:
1
Camere da letto:
2
Mostra tutto
Prezzo Prezzo
€ 65.000
Rata mutuo Rata mutuo
€ 306 / mese
Spese annue Spese annue
€ 2.400
Proponi il tuo prezzoProponi il tuo prezzo
Immobile valutato con T·Valuta

Classe Energetica

F
F
F
F
F
F
F
F
F
EP globale non rinnovabile:
155.71 kW h/m² anno
EP globale rinnovabile:
1.55 kW h/m² anno
EP invernale del fabbricato:
EP estiva del fabbricato:
Anno di costruzione:
1960
Riscaldamento:
Centralizzato
Tipo impianto:
A radiatori
Tipo alimentazione:
Metano

Ti interessa visionare l'immobile?

Fissa un appuntamento  Fissa un appuntamento

Richiedi informazioni

Clicca su Leggi per aprire l'informativa
* Questi campi sono obbligatori

Calcola il tuo mutuo

Semplice e senza impegno
Anticipo

( % )
Mutuo

( % )

pochi semplici passi

inserisci i tuoi dati
Questionario completato
Grazie per aver richiesto un appuntamento senza impegno con un nostro Consulente del Credito e Assicurativo.

Hai inserito correttamente tutti i dati necessari e a breve riceverai una e-mail con un link da convalidare per inviare i tuoi dati.
Affiliato
Dreamers Srl
Via Salussolia, 10 13043 Cigliano (VC)

Il nostro staff


  • Serena Magistrello
    Coordinatrice

  • Alessia Pellegrino
    Collaboratrice

  • Matteo Piras
    Responsabile

  • Mattia Pietrosino
    Affiliato
Via Salussolia, 10 13043 Cigliano (VC)
Zona: Cigliano-Livorno Ferraris-Moncrivello
Mostra su mappa
Affiliato
Dreamers Srl
Via Salussolia, 10 13043 Cigliano (VC)

2026 Tecnocasa Franchising S.p.A. - P. IVA 08365160152 - Via Monte Bianco 60/A 20089 Rozzano (MI). Ogni agenzia ha un proprio titolare ed è autonoma. Privacy policy | Policy utilizzo | Cookie policy