5 locali in vendita

Livorno Ferraris, Via G. B. Vercelli
€ 75.000
5 locali 5 locali
173 Mq 173 Mq
1 bagno 1 bagno

5 locali in vendita

Livorno Ferraris, Via G. B. Vercelli

Descrizione annuncio

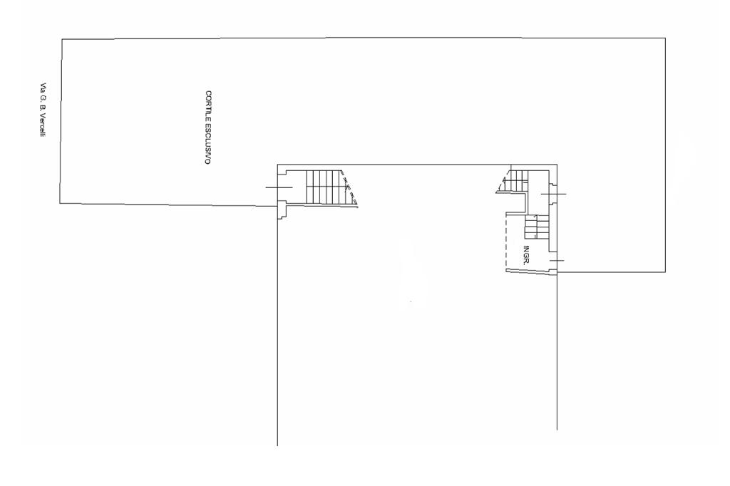
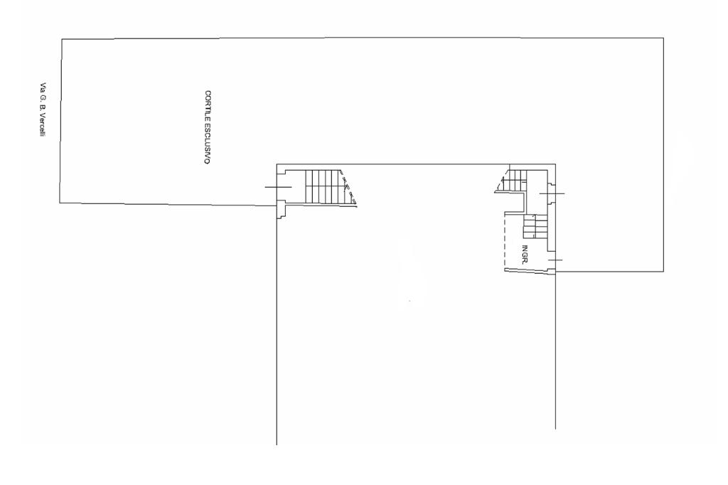
5 locali in villa bifamiliare al primo piano con cortile privato e tarrazzo in vendita a Livorno Ferraris (VC)

In vendita a Livorno Ferraris (VC), in zona residenziale tranquilla e a soli 500 metri dal centro, proponiamo una porzione di villa bifamiliare, completamente autonoma e senza spese condominiali.
L’immobile si distingue per la grande metratura, la generosa luminosità degli ambienti e la presenza di spazi esterni esclusivi.

Caratteristiche

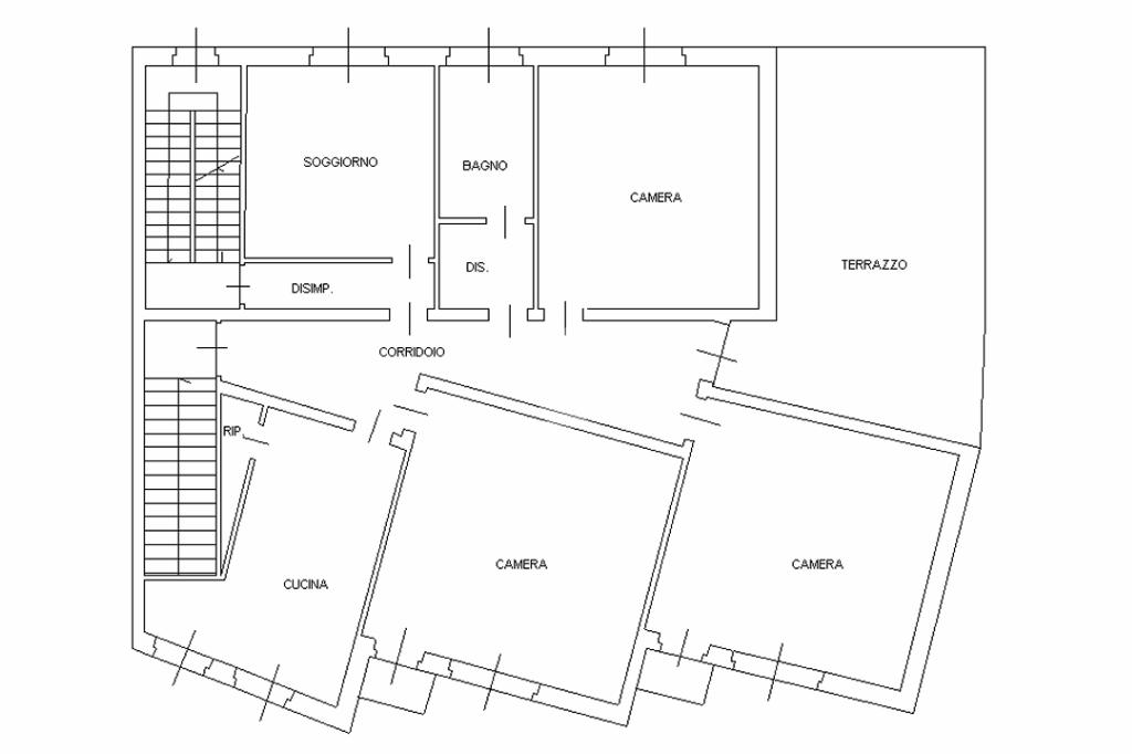
- Ingresso 1: fronte strada, ampio vano scala che raggiunge il primo piano;

- Ingresso 2: sul retro, secondo vano scala;

- Corridoio: accogliente e luminoso, mette in comunicazione tutti i locali e accede al terrazzo;

- Cucina: di circa 20 mq, con adiacente ripostiglio, ideale come dispensa;

- Soggiorno: di circa 17 mq;

- Camera matrimoniale 1: di circa 30 mq, con climatizzazione e sfogo sul balcone;

- Camera matrimoniale 2: di circa 30 mq, con sfogo sul balcone;

- Camera matrimoniale 3: di circa 25 mq;

- Bagno: con allaccio per la lavatrice e vasca, preceduto da spazioso antibagno;

- Terrazzo: di circa 30 mq, con esposizione a nord-est;

- Cortile: privato, attualmente non recintato, di circa 80 mq;

- Box auto: singolo;

- Sottotetto: di circa 30 mq.

Dotazioni

- Riscaldamento autonomo, tramite radiatori a metano;

- Infissi in legno con vetro singolo;

- Boiler elettrico.

Punti di forza

- Assenza totale di spese condominiali;

- Indipendenza completa, con ingressi separati;

- Grandi spazi interni;

- Ambienti luminosi e ben distribuiti;

- Cortile privato e terrazzo soleggiato;

- Da ristrutturare, secondo le proprie esigenze.

Verifica catastale ed urbanistica in corso. La descrizione, i dettagli e le foto sono pertanto puramente descrittivi.

Contattaci per maggiori informazioni o per fissare una visita e seguici sui social per non perdere aggiornamenti e novità in anteprima.

Il team di Dreamers SRL è a tua disposizione.

Mostra tutto

Nelle vicinanze

Trasporto pubblico Trasporto pubblico
Livorno Ferraris
Livorno Ferraris
570 m
Ricariche auto elettriche Ricariche auto elettriche
Emobitaly Livorno Ferraris
380 m
Scuole Scuole
Scuole Elementari e Medie
400 m
Farmacia Farmacia
Farmacia Mezzalama
340 m
Farmacia Gallo
390 m
Supermercati Supermercati
Carrefour Express
330 m
Supermercati
430 m
Conad
1,2 Km
Bar Bar
Bar Albergo Stazione
570 m
Ristoranti Ristoranti
Pizzeria Sorrento
310 m
Mostra tutto

Caratteristiche

Rif.:
61139823
Piano:
1 di 2 (Piano basso)
Box:
1
Balconi:
2
Terrazzi:
1
Camere da letto:
3
Mostra tutto
Prezzo Prezzo
€ 75.000
Rata mutuo Rata mutuo
€ 353 / mese
Spese annue Spese annue
€ 0
Proponi il tuo prezzoProponi il tuo prezzo
Immobile valutato con T·Valuta

Classe Energetica

F
F
F
F
F
F
F
F
F
EP globale non rinnovabile:
487.17 kW h/m² anno
EP globale rinnovabile:
10.26 kW h/m² anno
EP invernale del fabbricato:
EP estiva del fabbricato:
Anno di costruzione:
1960
Riscaldamento:
Autonomo
Tipo impianto:
A radiatori
Tipo alimentazione:
Metano

Ti interessa visionare l'immobile?

Fissa un appuntamento  Fissa un appuntamento

Richiedi informazioni

Clicca su Leggi per aprire l'informativa
* Questi campi sono obbligatori

Calcola il tuo mutuo

Semplice e senza impegno
Anticipo

( % )
Mutuo

( % )

pochi semplici passi

inserisci i tuoi dati
Questionario completato
Grazie per aver richiesto un appuntamento senza impegno con un nostro Consulente del Credito e Assicurativo.

Hai inserito correttamente tutti i dati necessari e a breve riceverai una e-mail con un link da convalidare per inviare i tuoi dati.
Affiliato
Dreamers Srl
Via Salussolia, 10 13043 Cigliano (VC)

Il nostro staff


  • Serena Magistrello
    Coordinatrice

  • Alessia Pellegrino
    Collaboratrice

  • Matteo Piras
    Responsabile

  • Mattia Pietrosino
    Affiliato
Via Salussolia, 10 13043 Cigliano (VC)
Zona: Cigliano-Livorno Ferraris-Moncrivello
Mostra su mappa
Affiliato
Dreamers Srl
Via Salussolia, 10 13043 Cigliano (VC)

2026 Tecnocasa Franchising S.p.A. - P. IVA 08365160152 - Via Monte Bianco 60/A 20089 Rozzano (MI). Ogni agenzia ha un proprio titolare ed è autonoma. Privacy policy | Policy utilizzo | Cookie policy