Casa indipendente in vendita

Moncrivello, Via Berno
€ 69.000
3 locali 3 locali
190 Mq 190 Mq
2 bagni 2 bagni

Casa indipendente in vendita

Moncrivello, Via Berno

Descrizione annuncio

Casa indipendente da ristrutturare con ampio cortile privato e depositi a Moncrivello

Nel cuore di Moncrivello, proponiamo in vendita soluzione indipendente da ristrutturare, dal grande potenziale.
La proprietà è composta da abitazione principale sviluppata su due livelli, numerosi locali deposito, autorimesse, tettoie e ampio cortile privato.
I due ingressi carrai, posizionati su strade tra loro opposte, rendono l’immobile particolarmente versatile, ideale anche per attività di stoccaggio o uso accessorio.

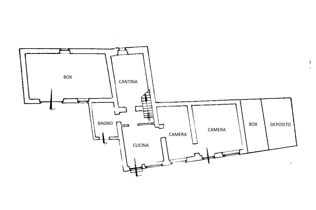
Caratteristiche

L’unità abitativa è collegata internamente tramite scala interna ed è così distribuita:

- Cucina abitabile: circa 17 mq, al piano terra, con accesso diretto al cortile

- Camera 1: circa 19 mq, al piano terra, di passaggio tra la cucina e la seconda camera

- Camera 2: circa 23 mq, al piano terra, con accesso diretto al cortile

- Bagno piano terra: circa 6 mq, con accesso diretto al cortile, dotato di doccia, boiler elettrico e allacci per la lavatrice

- Disimpegno: collega cucina, servizi igienici e vano scala, con accesso diretto alla cantina

- Cantina: circa 20 mq, al piano terra

- Bagno piano primo: circa 5 mq, con vasca

- Ripostiglio: circa 7,14 mq, al primo piano, finestrato

- Locale grezzo: circa 73 mq, al primo piano, con accesso al balcone

- Riscaldamento tramite radiatori alimentati a metano

Dotazioni e pertinenze

- Depositi al piano terra: circa 18 mq, 19 mq, 12 mq e 11 mq

- Depositi al primo piano: circa 19 mq e 12 mq

- Autorimesse: circa 10 mq e 60 mq

- Tettoie: circa 43 mq, 34 mq, 32 mq e 49 mq

- Cortile privato: circa 386 mq, in parte adibito a giardino

Punti di forza

- Indipendenza e ampi spazi interni ed esterni

- Presenza di numerosi locali deposito, tettoie e box auto

- Doppio ingresso carraio su strade opposte

- Soluzione ideale per abitazione con magazzino, artigiani, attività familiari o investimento

Verifica catastale ed urbanistica in corso. La descrizione, i dettagli e le foto sono pertanto puramente descrittivi.

Contattaci per maggiori informazioni o per fissare una visita e seguici sui social per non perdere aggiornamenti e novità in anteprima.

Il team di Dreamers SRL è a tua disposizione.

Mostra tutto

Nelle vicinanze

Trasporto pubblico Trasporto pubblico
Moncrivello (Piazza Municipio-Fr 7)
Moncrivello (Piazza Municipio-Fr 7)
190 m
Moncrivello (Str. per Maglione-SP 47 Bivio SP2-Dir. Moncrivello)
Moncrivello (Str. per Maglione-SP 47 Bivio SP2-Dir. Moncrivello)
630 m
Farmacia Farmacia
Farmacia
270 m
Negozi Negozi
Negozi
2,3 Km
Ristoranti Ristoranti
La Nuova Valle
2,0 Km
Mostra tutto

Caratteristiche

Rif.:
61164936
Piano:
Basso di 2
Totale piani:
2
Box:
2
Balconi:
1
Camere da letto:
2
Mostra tutto
Prezzo Prezzo
€ 69.000
Rata mutuo Rata mutuo
€ 325 / mese
Spese annue Spese annue
€ 0
Proponi il tuo prezzoProponi il tuo prezzo

Classe Energetica

E
E
E
E
E
E
E
E
E
EP globale non rinnovabile:
316.77 kW h/m² anno
EP globale rinnovabile:
144.05 kW h/m² anno
EP invernale del fabbricato:
EP estiva del fabbricato:
Anno di costruzione:
1960
Riscaldamento:
Autonomo
Tipo impianto:
A radiatori
Tipo alimentazione:
Metano

Ti interessa visionare l'immobile?

Fissa un appuntamento  Fissa un appuntamento

Richiedi informazioni

Clicca su Leggi per aprire l'informativa
* Questi campi sono obbligatori

Calcola il tuo mutuo

Semplice e senza impegno
Anticipo

( % )
Mutuo

( % )

pochi semplici passi

inserisci i tuoi dati
Questionario completato
Grazie per aver richiesto un appuntamento senza impegno con un nostro Consulente del Credito e Assicurativo.

Hai inserito correttamente tutti i dati necessari e a breve riceverai una e-mail con un link da convalidare per inviare i tuoi dati.
Affiliato
Dreamers Srl
Via Salussolia, 10 13043 Cigliano (VC)

Il nostro staff


  • Serena Magistrello
    Coordinatrice

  • Alessia Pellegrino
    Collaboratrice

  • Matteo Piras
    Responsabile

  • Mattia Pietrosino
    Affiliato
Via Salussolia, 10 13043 Cigliano (VC)
Zona: Cigliano-Livorno Ferraris-Moncrivello
Mostra su mappa
Affiliato
Dreamers Srl
Via Salussolia, 10 13043 Cigliano (VC)

2026 Tecnocasa Franchising S.p.A. - P. IVA 08365160152 - Via Monte Bianco 60/A 20089 Rozzano (MI). Ogni agenzia ha un proprio titolare ed è autonoma. Privacy policy | Policy utilizzo | Cookie policy